Laufenburg (Baden):
dirktes Wohnen in Laufenburg

Objekt-Nr.: 70717-889

Preis:
545.000 €

Wohnfläche ca.:
145 m²

Grundstück ca.:
360 m²

Zimmeranzahl:
5,5

Objektbeschreibung

Das CLOU 149 ist ein Traum vieler Familien mit tollem Raumprogramm
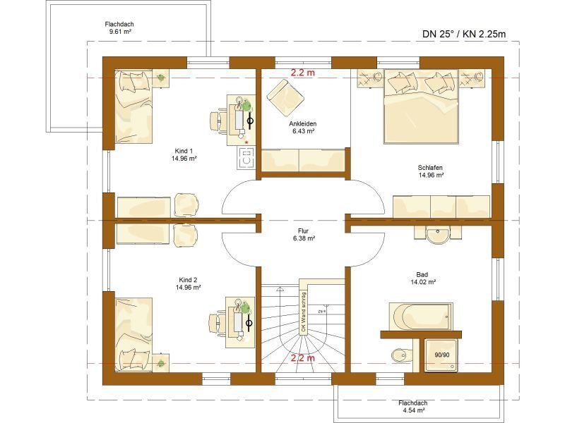
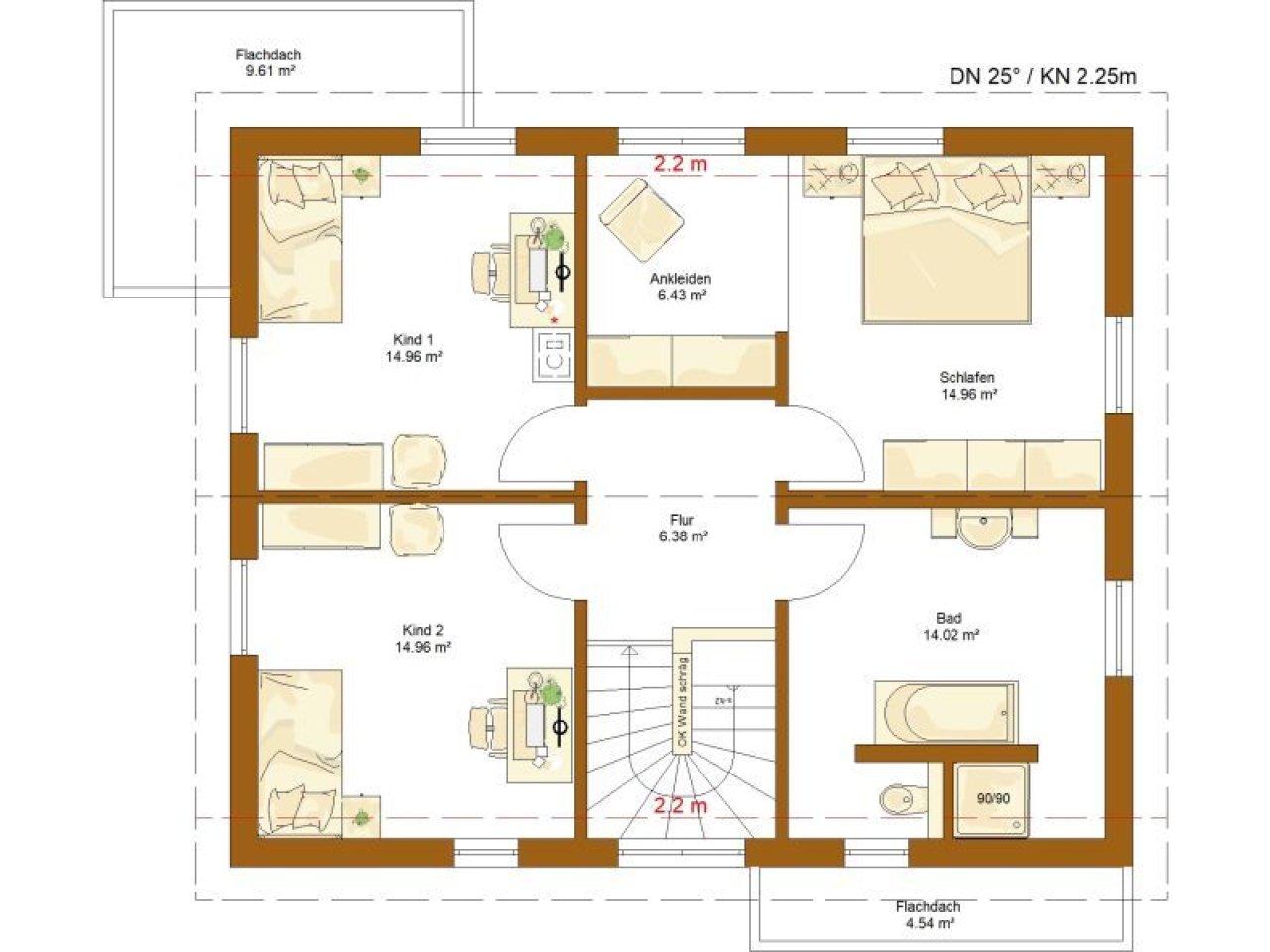
Das Einfamilienhaus liegt mit seinem hohen Kniestock bei zahlreichen Bauherren hoch im Trend. Im oberen Stockwerk ist Platz für zwei Kinderzimmer, das Elternschlafzimmer mit Ankleide und ein modernes Familienbad mit T-förmigem Zuschnitt.
Das Erdgeschoss bietet genügend Raum für das tägliche Familienleben und außerdem noch ein zusätzliches Zimmer, welches als Homeoffice, Gäste- oder weiteres Kinderzimmer genutzt werden kann.

Weitere Informationen

Haustyp: Einfamilienhaus


Etagenanzahl: 2


Provisionspflichtig: ja


Provision: nur für das Grundstück


Nutzfläche ca.: 149 m²


Anzahl Schlafzimmer: 4


Anzahl Badezimmer: 2


Terrasse: 1


Barrierefrei: ja


Gäste-WC: ja


Keller: nein


Umgebung: Bahnhof, Bus, Einkaufscenter, Grundschule, Kindergarten, ruhige Gegend


Qualität der Ausstattung: gehoben


Baujahr: 2026


Bauphase: Haus in Planung (projektiert)


Verfügbar ab: Herbst 2026


Bodenbelag: Fertigparkett, Fliesen


Zustand: Haus in Planung (projektiert)


Ihre Ansprechpartnerin

Birgit Ebner - Handelsvertretung der Rensch Haus GmbH
Frau Birgit Ebner

Eichenweg13
79774 Albbruck
Telefon: +49 173 6528428


Objekt-Adresse

79725 Laufenburg (Baden)
Waldshut
Baden-Württemberg
QR-Code