Jestetten:
Der beste Weg in Ihr eigenes Zuhause
Objekt-Nr.: 70717-882








Preis:
525.500 €
Wohnfläche ca.:
150 m²
Grundstück ca.:
404 m²
Zimmeranzahl:
5,5
Das Haus für Ihre Familie
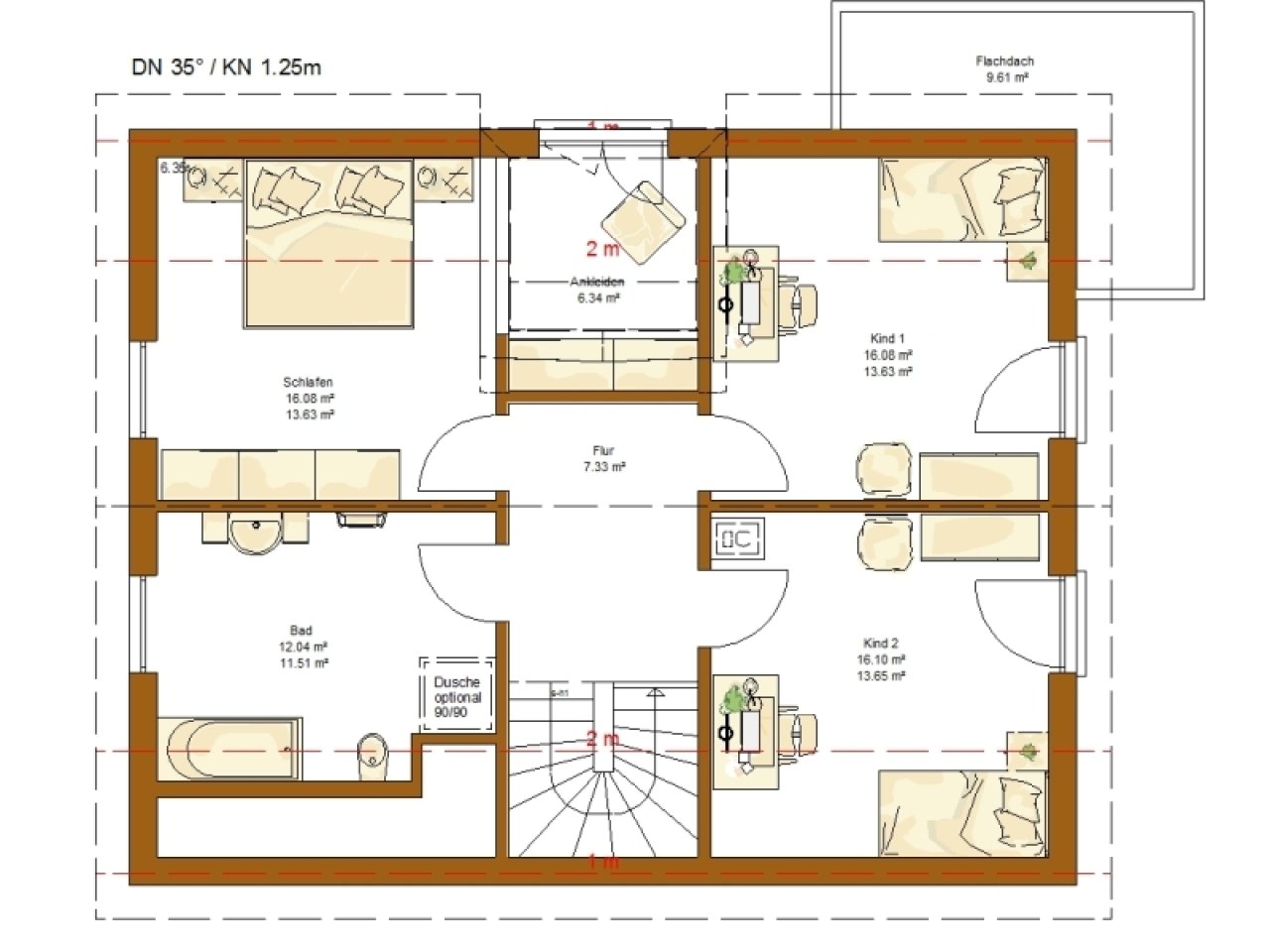
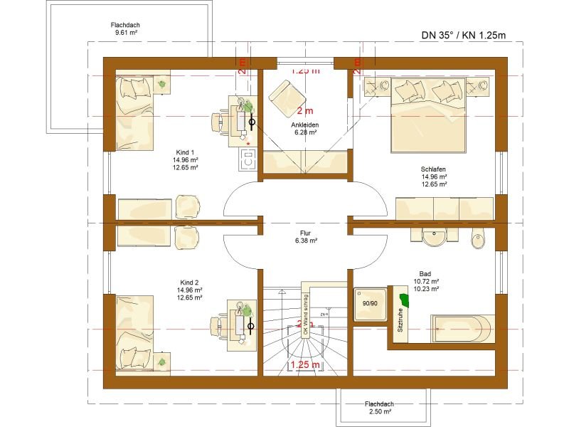
Schon auf den ersten Blick entdecken Sie bei dieser Haus-Idee von RENSCH-HAUS die überaus familienfreundliche Überlegung, sowie die klare und überlegte Designsprache. Diese Grundrisslösung mit einer Gesamtfläche von über 150 m² begrüßt Sie und Ihre Gäste bereits im Erdgeschoss mit einem großzügigen Dielenbereich - mit viel Platz auch für Ihre Garderobe. Wenn Sie es wünschen ist im geräumigen Gäste-WC die Einplanung einer Dusche möglich. Das Erdgeschoss hat - mit direktem Zugang in Ihren Garten - ein Homeoffice zu bieten, das Sie auch als Gästezimmer nutzen können. Von der offenen Küche aus erreichen Sie Ihren Wohn- und Essbereich: genießen Sie hier mit Ihren Lieben ein großzügiges Wohngefühl. Als weiteres Highlight sorgt der Übereck auskragende Cube mit Rundum-Verglasung für viel Licht in Ihrer gemütlichen Relax-Zone. Im Dachgeschoss freuen sich Ihre Kinder in den beiden großzügigen und sehr hell gestalteten Räumen auf ihre persönliche Welt. Ein großzügiges und sehr variables Familienbad lässt keine Wünsche offen. Das geräumige Elternschlafzimmer mit integriertem Ankleidebereich garantiert Ihnen nach einem anstrengenden Arbeitstag einen idealen Rückzugsort zum Entspannen. Die Außenansicht erhält durch einen dritten Giebel mit einer attraktiven Flachdach-Gestaltung ein sehr modernes und zeitgemäßes Gesicht.
Möchten Sie mehr erfahren? Entdecken Sie mit uns das Haus für Ihre Familie.
Haustyp: Einfamilienhaus
Etagenanzahl: 2
Provisionspflichtig: nein
Provision: Keine Käuferprovision fällig
Nutzfläche ca.: 156 m²
Anzahl Schlafzimmer: 4
Anzahl Badezimmer: 2
Terrasse: 1
Gäste-WC: ja
Keller: nein
Als Ferienhaus geeignet: ja
Umgebung: Bus, Einkaufscenter, Grundschule
Ausblick: Fernblick
Qualität der Ausstattung: gehoben
Baujahr: 2026
Bauphase: Haus in Planung (projektiert)
Verfügbar ab: Herbst 2026
Zustand: Haus in Planung (projektiert)
Das könnte Ihnen auch gefallen
Am Feldrand mitten in der Natur
Der beste Weg in Ihr eigenes Zuhause
*** Was fuer ein Haus***

Birgit Ebner - Handelsvertretung der Rensch Haus GmbH
Frau Birgit Ebner
Eichenweg13
79774 Albbruck
Telefon: +49 173 6528428
79798 Jestetten
Waldshut
Baden-Württemberg














