Laufenburg (Baden):
dirktes Wohnen in Laufenburg
Objekt-Nr.: 70717-880












Preis:
545.000 €
Wohnfläche ca.:
145 m²
Grundstück ca.:
360 m²
Zimmeranzahl:
5,5
Das CLOU 149 ist ein Traum vieler Familien mit tollem Raumprogramm
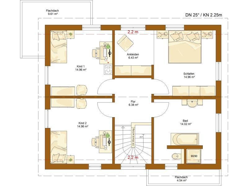
Das Einfamilienhaus liegt mit seinem hohen Kniestock bei zahlreichen Bauherren hoch im Trend. Im oberen Stockwerk ist Platz für zwei Kinderzimmer, das Elternschlafzimmer mit Ankleide und ein modernes Familienbad mit T-förmigem Zuschnitt.
Das Erdgeschoss bietet genügend Raum für das tägliche Familienleben und außerdem noch ein zusätzliches Zimmer, welches als Homeoffice, Gäste- oder weiteres Kinderzimmer genutzt werden kann.
Haustyp: Einfamilienhaus
Etagenanzahl: 2
Provisionspflichtig: ja
Provision: nur für das Grundstück
Nutzfläche ca.: 149 m²
Anzahl Schlafzimmer: 4
Anzahl Badezimmer: 2
Terrasse: 1
Barrierefrei: ja
Gäste-WC: ja
Keller: nein
Umgebung: Bahnhof, Bus, Einkaufscenter, Grundschule, Kindergarten, ruhige Gegend
Qualität der Ausstattung: gehoben
Baujahr: 2026
Bauphase: Haus in Planung (projektiert)
Verfügbar ab: Herbst 2026
Bodenbelag: Fertigparkett, Fliesen
Zustand: Haus in Planung (projektiert)
Das könnte Ihnen auch gefallen
Am Feldrand mitten in der Natur
Der beste Weg in Ihr eigenes Zuhause
*** Was fuer ein Haus***

Birgit Ebner - Handelsvertretung der Rensch Haus GmbH
Frau Birgit Ebner
Eichenweg13
79774 Albbruck
Telefon: +49 173 6528428
79725 Laufenburg (Baden)
Waldshut
Baden-Württemberg














