Jestetten:
Der beste Weg in Ihr eigenes Zuhause
Objekt-Nr.: 70717-879












Preis:
535.000 €
Wohnfläche ca.:
160 m²
Grundstück ca.:
404 m²
Zimmeranzahl:
5,5
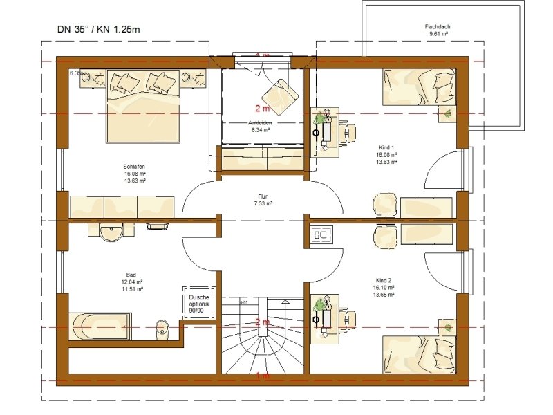
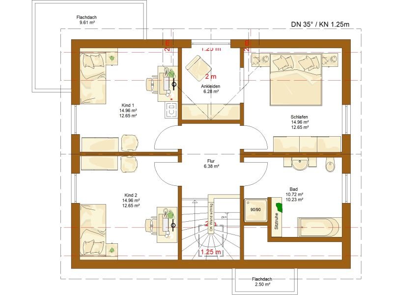
Dieses Einfamilienhaus mit einem 2,25 m hohen Kniestock bietet viel Platz und fast keine Dachschrägen in der oberen Etage. Die Variante mit „drittem Giebel in Flachdachoptik“ erweitert auf sinnvolle Weise den Essbereich im Erdgeschoss und vergrößert gleichermaßen das Gästezimmer im Dachgeschoss um weitere vier Quadratmeter. Somit können im Dachgeschoss sogar drei, nahezu gleich große, Kinderzimmer untergebracht werden. Ebenfalls in der oberen Etage befindet sich das Elternschlafzimmer und das moderne Familienbad mit modernem Zuschnitt.
Haustyp: Einfamilienhaus
Etagenanzahl: 2
Provisionspflichtig: nein
Nutzfläche ca.: 167 m²
Küche: offen
Anzahl Schlafzimmer: 4
Anzahl Badezimmer: 2
Terrasse: 1
Gäste-WC: ja
Keller: nein
Als Ferienhaus geeignet: ja
Umgebung: Bahnhof, Bus, Einkaufscenter, Grundschule, ruhige Gegend
Qualität der Ausstattung: gehoben
Baujahr: 2026
Bauphase: Haus in Planung (projektiert)
Verfügbar ab: Sommer 2026
Bodenbelag: Fertigparkett, Fliesen
Zustand: Haus in Planung (projektiert)
Das könnte Ihnen auch gefallen
Der beste Weg in Ihr eigenes Zuhause
*** Was fuer ein Haus***
Am Feldrand mitten in der Natur

Birgit Ebner - Handelsvertretung der Rensch Haus GmbH
Frau Birgit Ebner
Eichenweg13
79774 Albbruck
Telefon: +49 173 6528428
79798 Jestetten
Waldshut
Baden-Württemberg














