Stockach:
Am Feldrand mitten in der Natur
Objekt-Nr.: 70717-876










Preis:
475.000 €
Wohnfläche ca.:
140 m²
Grundstück ca.:
631 m²
Zimmeranzahl:
5,5
Für Sie und Ihre Lieben! Dieser Entwurf trifft mit seiner klassischen Architektur den Geschmack vieler Bauherren
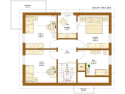
Ein traditionelles Satteldach in Verbindung mit einem dritten Giebel ist das prägende Gestaltungselement dieses Hauses. Unter dem Dach findet sich Platz für zwei Kinderzimmer, ein Elternschlafzimmer mit lichtdurchfluteter Ankleide sowie ein modernes Familienbad. Das Erdgeschoss bietet viel Raum für das tägliche Familienleben und außerdem noch ein zusätzliches Zimmer, welches als Büro, Gästezimmer oder weiteres Kinderzimmer genutzt werden kann.
Haustyp: Einfamilienhaus
Etagenanzahl: 2
Provisionspflichtig: nein
Nutzfläche ca.: 148 m²
Anzahl Schlafzimmer: 4
Anzahl Badezimmer: 1
Gäste-WC: ja
Keller: nein
Als Ferienhaus geeignet: ja
Umgebung: ruhige Gegend, Wohnanlage
Ausblick: Fernblick
Qualität der Ausstattung: gehoben
Baujahr: 2025
Bauphase: Haus in Planung (projektiert)
Verfügbar ab: Herbst 2026
Zustand: Haus in Planung (projektiert)
Das könnte Ihnen auch gefallen
Der beste Weg in Ihr eigenes Zuhause
Am Feldrand mitten in der Natur
Alles aus einer Hand

Birgit Ebner - Handelsvertretung der Rensch Haus GmbH
Frau Birgit Ebner
Eichenweg13
79774 Albbruck
Telefon: +49 173 6528428
78333 Stockach
Konstanz
Baden-Württemberg















